Altbaucharme mit Erweiterungspotential

895.000 €

86179 Augsburg

9 Zimmer 9 Schlafzimmer 3 Bad ca. 219,24 m² Wohnfläche ca. 807 m² Grundstück

Objektangaben

Objektart Haus
Objekttyp Mehrfamilienhaus
Nutzungsart Wohnen
Vermarktungsart Kauf
PLZ 86179
Ort Augsburg
ImmoNr AI-00124
Anzahl Zimmer 9
Schlafzimmer 9
Badezimmer 3
Kaufpreis 895.000 €
Wohnfläche ca. 219,24 m²
Grundstücksgröße ca. 807 m²
Baujahr 1950
Zustand Renovierungsbeduerftig
Etagenzahl 3
Energieausweis Endenergiebedarf
Endenergiebedarf 370.30 kWh/(m²·a)
Energieeffizienzklasse H
Energieausweis gültig bis 2036-01-20
Energieträger Oel
Warmwasser enthalten Ja
Heizungsart Zentral Oel
Befeuerung Oel
Unterkellert Ja
Balkon Ja

Beschreibung

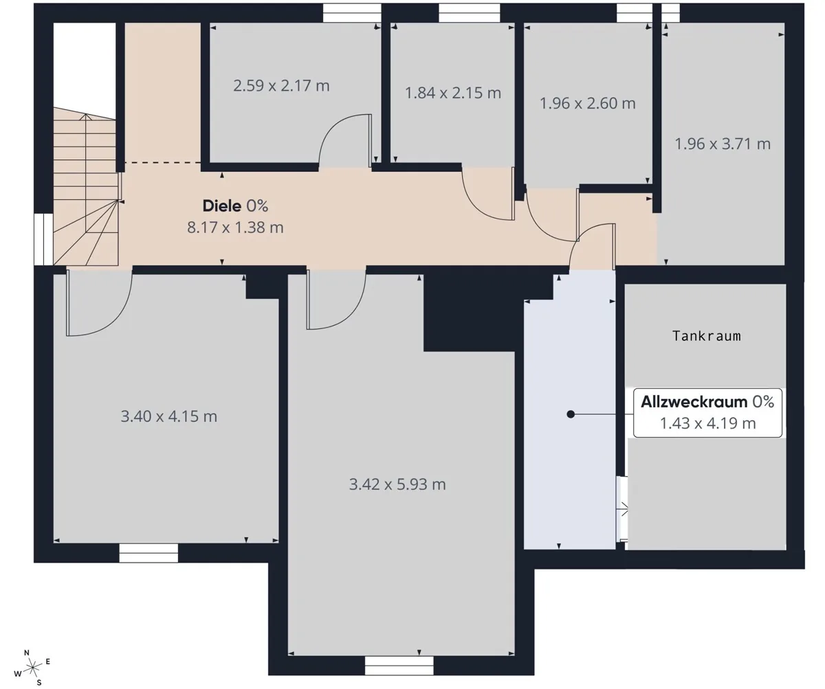
Dieses sanierungsbedürftige Mehrfamilienhaus aus ca. dem Jahr 1950 überzeugt durch seinen klassischen Altbaucharakter, großzügige Raumhöhen und eine solide Grundstruktur. Mit einer Wohnfläche von rund 219 m² bietet das Gebäude vielfältige Nutzungsmöglichkeiten und richtet sich insbesondere an Kapitalanleger, Projektentwickler oder handwerklich versierte Eigennutzer. Die bestehende Aufteilung sowie die vorhandenen Raumstrukturen ermöglichen – mit entsprechenden Umbaumaßnahmen – die Schaffung von bis zu drei separaten Wohneinheiten. Hohe Decken, gut proportionierte Räume und das typische Altbauflair bilden hierfür eine attraktive Grundlage.

Darüber hinaus verfügt das Anwesen über weiteres Bebauungs- bzw. Erweiterungspotenzial, das zusätzlichen Mehrwert bieten kann (erste Einschätzung durch Architekt ca. 197qm Wohnfläche realisierbar). Das großzügige Grundstück mit ca. 807 m² Fläche eröffnet ausreichend Platz für Stellplätze, Außenflächen oder zusätzliche Nutzungen und unterstreicht den Entwicklungscharakter der Immobilie.

Insbesondere folgende Bereiche sind zu modernisieren bzw. zu erneuern:

- Keller

- Elektrik

- Sanitäranlagen

- Bodenbeläge

- Heizungsanlage (derzeit Ölheizung)

Die Fenster wurden im Jahr 2010 erneuert, was einen soliden Ausgangspunkt für die weitere Sanierung darstellt.

Lage

Die Immobilie befindet sich in Augsburg-Haunstetten, einem der gefragtesten und zugleich gewachsenen Stadtteile im Süden Augsburgs. Die Lage zeichnet sich durch eine gelungene Kombination aus ruhigem Wohnumfeld, sehr guter Infrastruktur und hohem Freizeitwert aus. Besonders hervorzuheben ist die unmittelbare Nähe zum Naturfreibad Haunstetten, einem der beliebtesten Naherholungsgebiete der Stadt. Ergänzt wird das Freizeitangebot durch weitläufige Grünflächen, Spazier- und Radwege sowie die Nähe zum Siebentischwald, die zu einer hohen Wohn- und Lebensqualität beitragen. Einkaufsmöglichkeiten des täglichen Bedarfs, Schulen, Kindergärten, Ärzte und gastronomische Angebote befinden sich in kurzer Entfernung und sind bequem erreichbar. Die Anbindung an den öffentlichen Nahverkehr ist sehr gut, sodass sowohl die Augsburger Innenstadt als auch umliegende Stadtteile schnell erreicht werden können.

Auch die verkehrstechnische Anbindung überzeugt: Über die nahegelegenen Hauptverkehrsachsen besteht eine schnelle Verbindung in Richtung Innenstadt sowie zu den überregionalen Verkehrswegen. Dadurch ist der Standort sowohl für Eigennutzer, Investoren als auch für Pendler attraktiv.

Sonstige Angaben

Sanierung:

Keller: ca. 50.000€ (mit Aufgrabung u. Drinage)

Heizung: ca. 30.000€

Bäder: ca. 15 - 20.000€ pro Bad

Böden: ca. 9.0000€ (Vinylböden)

Elektrik: 25.000€

aufjedenfall ca. = 150.000 - 200.000€

Ausstattung

- Heizung: Öl -> 1995

- Wohneinheiten: 3

- Zustand: sanierungsbedürftig

- Garage

- vollunterkellert

- Fenster: Kunststoff 2-fach verglast

- kein Bebauungsplan §34 Umgebung

- JNKM SOLL: ca. 44.000€ (Bestand ->nach Sanierung)

- WG geeignete Aufteilung

- Erweiterungspotential Bebauung (siehe Entwurf) + 197qm Wohnfläche

Karte

Veröffentlicht: 12. Januar 2026