Gewerbeimmobilie mit viel Renditepotential

1.500.000 €

73312 Geislingen an der Steige

Objektangaben

Objektart Sonstige
Objekttyp Gewerbeanwesen
Nutzungsart Gewerbe
Vermarktungsart Kauf
PLZ 73312
Ort Geislingen an der Steige
ImmoNr AI-00120
Kaufpreis 1.500.000 €
Nutzfläche ca. 1285,63 m²
Baujahr 1980
Zustand Gepflegt
Energieausweis Energieverbrauchskennwert
Endenergieverbrauch 311.40 kWh/(m²·a)
Endenergieverbrauch (Strom) 118,20
Endenergieverbrauch (Wärme) 89,60
Energieausweis gültig bis 2032-11-23
Energieträger Gas
Warmwasser enthalten Ja
Unterkellert Ja

Beschreibung

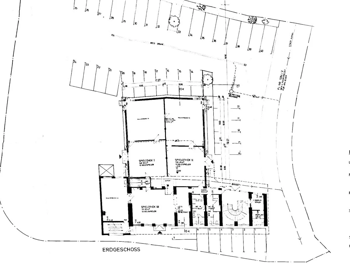
Diese gepflegte Gewerbeimmobilie (ca. 1980) in Geislingen an der Steige umfasst rund 1.286 m² Nutzfläche über drei Ebenen sowie großzügige Außenflächen mit zahlreichen Stellplätzen. Das Erdgeschoss ist vollständig an einen etablierten Spielhallenbetreiber vermietet, der sowohl den Neubau- als auch den Bestandsbereich nutzt und langfristig gebunden ist. Die Mietfläche wird durch eine Gasheizungsanlage aus dem Jahr 2010 versorgt.

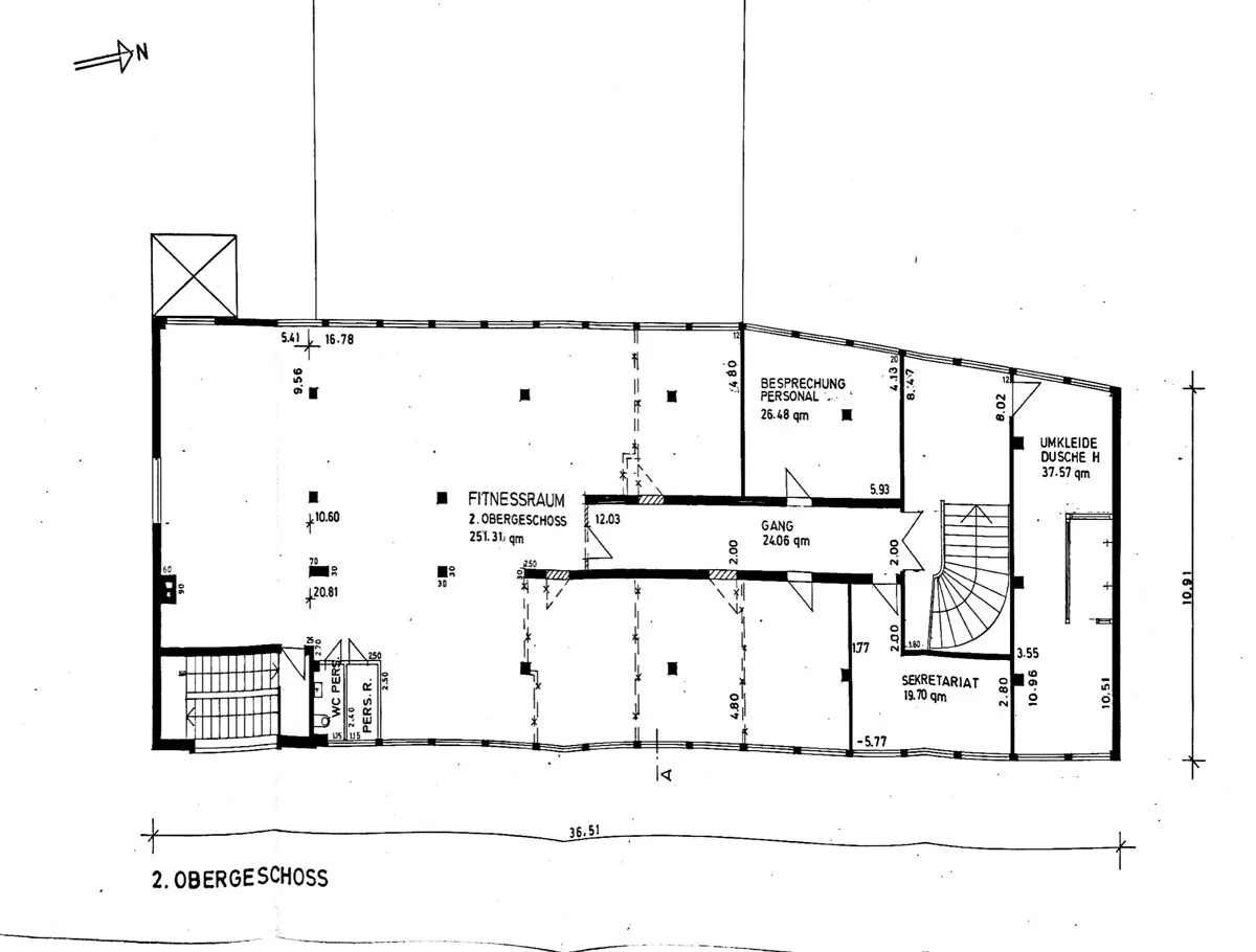
Die Obergeschosse bieten zwei große, offen geschnittene Gewerbeflächen, die zuvor als Fitnessstudio genutzt wurden und derzeit leerstehen. Mit Flächen von 365 m² (1.OG) und 369 m² (2.OG) eignen sich diese Bereiche ideal für Fitness- und Gesundheitskonzepte, Büro- oder Praxisnutzungen sowie andere publikums- oder dienstleistungsorientierte Gewerbeformen. Durch ihre flexible Struktur, Fensterfronten und die vorhandene technische Ausstattung bieten die OGs ein attraktives Entwicklungspotenzial.

Im Jahr 2016 wurde das Gebäude umfangreich modernisiert. Die vorliegenden Umbauunterlagen dokumentieren zahlreiche Maßnahmen, darunter Elektroerneuerung, neue Beleuchtung, Sanitär- und Umkleidebereiche, Bodenbeläge, Fliesen- und Malerarbeiten sowie bauliche Anpassungen im EG und OG. Diese Investitionen verbessern den Gesamtzustand des Objekts nachhaltig und schaffen solide Voraussetzungen für eine erneute Vermietung der Obergeschosse

Die Parkplatzsituation ist überdurchschnittlich gut: Neben den zugeordneten Stellplätzen für den Hauptmieter sind weitere Flächen vorhanden, unter anderem eine Schotterfläche, die derzeit separat vermietet ist. Insgesamt präsentiert sich das Objekt als solide, vielseitig nutzbare Gewerbeimmobilie mit sicherem Cashflow im Erdgeschoss und attraktiven Nachvermietungschancen in den oberen Etagen.

Lage

Geislingen an der Steige liegt im Landkreis Göppingen in Baden-Württemberg und zählt zu den wirtschaftlich relevanten Mittelzentren der Region. Die Stadt befindet sich strategisch günstig zwischen den Wirtschaftsachsen Stuttgart und Ulm und profitiert von einer hervorragenden verkehrstechnischen Anbindung: Über die Bundesstraßen B10 und B466 ist Geislingen direkt an das überregionale Verkehrsnetz angeschlossen, während der nahegelegene Autobahnanschluss zur A8 die schnelle Anbindung an den Großraum Stuttgart, den Flughafen und die umliegenden Industriestandorte gewährleistet. Zudem verfügt die Stadt über einen gut frequentierten Regionalbahnhof mit direkter Verbindung in Richtung Ulm und Stuttgart.

Als traditionsreicher Industriestandort mit namhaften Arbeitgebern wie WMF, Werkzeug- und Metallverarbeitung sowie mittelständischen Produktions- und Logistikunternehmen besitzt Geislingen eine stabile wirtschaftliche Basis. In den letzten Jahren zeigt sich zunehmend ein Strukturwandel, bei dem Flächen für Logistik, Produktion, Fitness- und Freizeitanlagen, Dienstleistungsbetriebe sowie regionale Handelskonzepte verstärkt nachgefragt werden. Für Investoren ergeben sich dadurch attraktive Chancen, insbesondere im Bereich der Bestandsoptimierung, Neupositionierung und Umnutzung von Gewerbeimmobilien.

Die Stadt verfügt über ein großes Einzugsgebiet, das sowohl umliegende Gemeinden als auch Pendler aus dem Alb-Donau-Raum einschließt. Die Kombination aus industrieller Tradition, wachsender Dienstleistungsorientierung und einer soliden Bevölkerungsentwicklung macht Geislingen zu einem nachhaltig interessanten Gewerbestandort. Gewerbeflächen profitieren von vergleichsweise moderaten Miet- und Kaufpreisen, wodurch sich attraktive Renditen erzielen lassen, insbesondere für Objekte in frequentierten Lagen, an Hauptverkehrsachsen oder mit nutzungsflexiblen Grundrissen.

Ausstattung

Wesentliche Sanierungen:

- 1995: Sanitärinstallationen, Gasheizung, Hauseinführung GVF neu, Innen- u. Außenputz, Bodenbeläge

- 2000: Sanierung Beton Außenfassade, Dachsanierung

- 2010: Heizung Installation im Altbau u. Neubau, Türen u. Fenster Altbau, Neubau, Fassadensanierung mit Aluwelle, Elektroarbeiten, Außenanlagen

- 2014: Fenstertausch, 58 neue Heizkörper, Weißhaupt Brennwertgerät, Ausbau Fitnessstudio Fliesen, Sanitär, Elektro, Decken, Boden, Trockenbau

- 2016: Modernisierung Fitnessstudio Türen, Beleuchtung und Fliesen

Mieteinnahmen:

- aktuell: 6.643,53€ kalt / Monat

- Nebenkosten: 820€

- mit Optierung

- + 2.677€ / Monat Mietausfallversicherung läuft bis Oktober 2026 (nicht übertragbar)

+ 357€ Schotterfläche

= aktuelle IST Einnahmen: 9677,53€ kalt

- Grundstücksfläche: 2958 m²

- Rendite brutto IST: 7,74%

- Rendite brutto SOLL: 9,2%

Flächenaufteilung:

- teilunterkellert

- Erdgeschoss: 550,73 m² - vermietet -> 30 Stellplätze

- 1.Obergeschoss: 365,37 m² - Leerstand -> 14 Stellplätze

- 2.Obergeschoss: 369,53 m² - Leerstand

= Gesamtfläche 1285,63 m²

Karte

Veröffentlicht: 9. Dezember 2025